미사 한신휴플러스 아파트는 현대적인 감각과 실용성을 동시에 갖춘 공간으로, 많은 소비자들에게 인기를 끌고 있습니다. 이번 글에서는 이 아파트의 인테리어를 어떻게 개선할 수 있는지에 대한 실질적인 팁과 시공 사례를 소개하겠습니다.
1. 공간 활용의 중요성
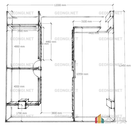
미사 한신휴플러스 아파트는 다양한 평형대와 구조를 가지고 있어, 공간 활용이 매우 중요합니다. 특히, 좁은 공간을 보다 넓게 보이게 하는 인테리어 기법이 필요합니다. 예를 들어, 미니멀리즘 디자인을 적용하여 불필요한 가구를 최소화하고, 벽면을 활용한 수납 공간을 확보하면 시각적으로도 공간이 확장된 느낌을 줄 수 있습니다. 
2. 색상과 조명
인테리어에서 색상과 조명은 공간의 분위기를 크게 좌우합니다. 미사 한신휴플러스 아파트는 자연 채광이 풍부하므로, 따뜻한 색조의 페인팅과 조명을 선택하여 아늑한 느낌을 더할 수 있습니다. 예를 들어, 벽면은 부드러운 베이지색으로 마감하고, 조명은 간접 조명을 활용하여 공간의 깊이를 더하는 것이 좋습니다. 
3. 최신 트렌드 반영
2023년 인테리어 트렌드 중 하나는 자연 친화적인 요소입니다. 실내 식물이나 천연 소재의 가구를 활용하여 건강하고 편안한 공간으로 탈바꿈할 수 있습니다. 미사 한신휴플러스 아파트의 발코니를 활용하여 작은 정원을 조성하거나, 내추럴 우드 느낌의 가구를 배치하면 더욱 매력적인 공간이 완성됩니다. 
4. 전문 시공의 필요성
인테리어는 단순히 예쁘게 꾸미는 것이 아니라, 기능성과 안전성을 고려해야 합니다. 건기넷은 10년 이상의 경력을 가진 전문 인테리어 팀을 보유하고 있으며, 고객의 요구사항을 충분히 반영하여 최적의 결과물을 제공합니다. 또한, 최신 기술과 자재를 사용하여 시공의 품질을 높이고 있습니다. 
5. 고객의 고민 해결
아파트 인테리어를 고민하는 고객님들은 종종 “어떤 스타일이 좋을까?” 또는 “어떻게 하면 공간을 활용할 수 있을까?”라는 질문을 하십니다. 저희 건기넷은 고객의 개인적인 취향과 생활 스타일을 반영하여 맞춤형 솔루션을 제공합니다. 고객의 소리를 경청하고, 이를 기반으로 한 디자인을 제안합니다. 
마무리
미사 한신휴플러스 아파트 인테리어는 단순한 꾸밈이 아닌, 생활의 질을 높이는 중요한 요소입니다. 전문 인테리어 시공을 통해 보다 편안하고 만족스러운 공간을 만들어 보세요. 건기넷은 고객의 고민을 해결하고, 신뢰할 수 있는 서비스를 제공하기 위해 항상 노력하겠습니다.
더 많은 팁과 정보를 원하신다면, 블로그를 계속 주목해 주세요!